关于旭彩网10218
本院概况
发展历程
领导班子
资质荣誉
业务范围
党团建设
员工风采
宣传片
新闻中心
本院新闻
业绩展示
交通规划与研究
智能交通与管理
城乡规划与自然资源
市政工程规划设计
测绘地理信息
科技创新
科研平台
知识产权
著作论文
交通模型
交通年报
规划决策支持平台
人才招聘
联系我们
业绩展示
Performance Presentation
交通规划与研究
智能交通与管理
城乡规划与自然资源
市政工程规划设计
测绘地理信息
业绩展示
交通规划与研究
智能交通与管理
城乡规划与自然资源
市政工程规划设计
测绘地理信息
工程设计
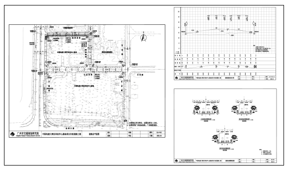
中国电建大湾区科创中心基地项目市政道路设计
项目位于花都区政府东侧,花都广场地铁C出口上盖,坐拥花都CBD核心位置。项目包含3条城市支路,红线宽度12~20m。项目包含了道路、交通、给水、雨水、污水、照明等专业,同步预留了燃气、通信、电力管线的实施条件。通过有限的道路红线内进行合理的管线综合设计,促进城市道路的断面空间科学有序地利用,推进城市地下管线集约高效建设和使用,实现片区地下空间利用的高质量发展。
关于旭彩网10218
本院概况
发展历程
领导班子
资质荣誉
业务范围
党团建设
员工风采
宣传片
新闻中心
本院新闻
业绩展示
交通规划与研究
智能交通与管理
城乡规划与自然资源
市政工程规划设计
测绘地理信息
科技创新
科研平台
知识产权
著作论文
交通模型
交通年报
规划决策支持平台
人才招聘
联系我们
关联网站
广州市规划和自然资源局
隐私政策
|
服务条款
|
人才招聘
|
联系我们
Copyright ©2023 旭彩网10218.
粤ICP备19073593号
Powered by vancheer.